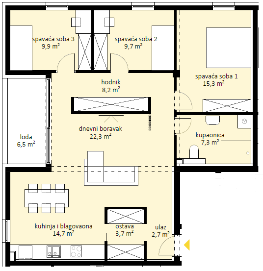
idealan za one koji uživaju u luksuzu i komforu. Veliki dnevni boravak povezan s
kuhinjom i blagovaonicom omogućava zajedničke trenutke u toplom i svijetlom okruženju
zbog velike staklene stijene koja nudi izlaz na lođu. S tri prostrane spavaće sobe,
elegantno opremljenom kupaonicom i dodatnim prostorom za garderobu ili ostavu, stan
pruža optimalnu funkcionalnost. Prostorije su svijetle, s velikim prozorima koji otvaraju
prekrasan pogled i osiguravaju obilje dnevnog svjetla. Unutrašnjost je pažljivo osmišljena
za maksimalnu funkcionalnost i estetski dojam. Stan nudi dodatnu sigurnost kroz video
nadzor, a stanari imaju osigurano korištenje spremišta u podzemnoj garaži, što
osigurava praktičnost i mir u svakodnevnom životu.