Augusta Šenoe, Jastrebarsko
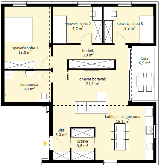
Ovaj prostrani stan od 100,88 m² koji se nalazi na prvoj etaži pruža raskoš prostora,
idealan za one koji uživaju u luksuzu i komforu. Dnevni boravak otvorenog koncepta
stapa se s blagovaonicom i suvremenom kuhinjom, stvarajući prostor za ugodna
druženja. Velika staklena stijena sa izlazom na lođu otvara pogled na okolinu, te
omogućava opuštanje na otvorenom. Osim glavne spavaće sobe, stan nudi još dvije
dodatne sobe koje se mogu koristiti kao spavaće sobe, radne sobe ili sobe za goste,
pružajući maksimalnu fleksibilnost i udobnost. Također, stan posjeduje ostavu u koju se
može ući sa strane gdje se nalazi ulaz te sa strane gdje je kuhinja što doprinosi pružanju
vrijednosti praktičnog prostora za odlaganje i organizaciju. Uz video nadzor i osigurano
spremište u podzemnoj garaži, stan pruža visoku razinu sigurnosti i udobnosti.
Projekt Jastrebarsko nudi 14 luksuznih stanova u zgradi s pet etaža, uz parkirna mjesta. Investiraj u svoj budući dom i uključite se u našu zajednicu koja nudi sve što vam je potrebno za kvalitetan život.