Augusta Šenoe, Jastrebarsko
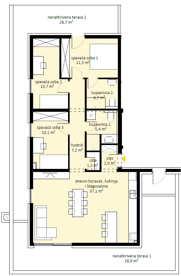
Najveći stan u zgradi, s površinom od 104,11 m² smješten na četvrtom katu, predstavlja
iznimno luksuzan i prostran dom koji pruža visoku razinu udobnosti i privatnosti.
Centralni dio stana čini veliki dnevni boravak otvorenog koncepta, povezan s modernom
kuhinjom i prostranom blagovaonicom. Zahvaljujući ovakvom rasporedu, prostor je
izuzetno prozračan, svijetao i savršen za okupljanja. Stan posjeduje tri spavaće sobe, od
kojih svaka nudi miran kutak za odmor ili rad, s dovoljno prostora za privatnost svakog
stanara. Dvije suvremeno opremljene kupaonice dodatno olakšavaju svakodnevni život,
pružajući praktičnost i udobnost. Jedan od praktičnih elemenata ovog stana je izba, koja
omogućava organizirano skladištenje, čime se ostatak stana oslobađa od vizualnog
nereda. Hodnik je praktično smješten i omogućuje lak pristup svim prostorijama, a
savršen završetak ovog prostora čini nenatkrivena terasa koja se proteže oko cijelog
stana. Ova terasa omogućuje izlaz iz gotovo svake prostorije, što stanu daje jedinstvenu
povezanost s vanjskim prostorom i predivan panoramski pogled. Stan nudi dodatnu
sigurnost putem video nadzora, a stanari imaju mogućnost korištenja spremišta u
podzemnoj garaži, što osigurava praktičnost i mir u svakodnevnom životu.
Projekt Jastrebarsko nudi 14 luksuznih stanova u zgradi s pet etaža, uz parkirna mjesta. Investiraj u svoj budući dom i uključite se u našu zajednicu koja nudi sve što vam je potrebno za kvalitetan život.