Augusta Šenoe, Jastrebarsko
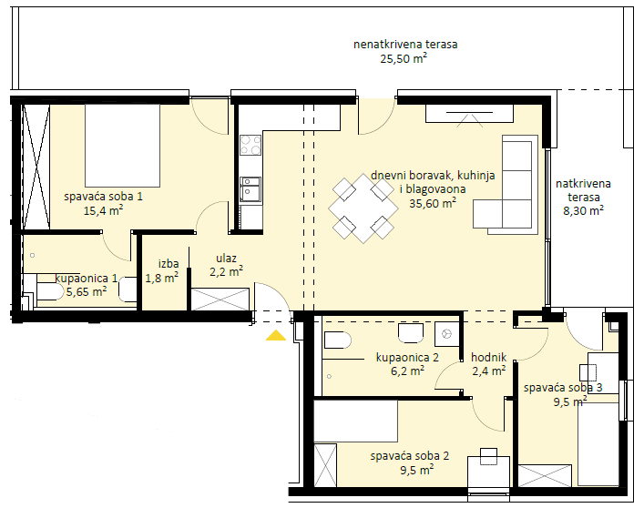
Stan površine 98,78 m² smješten na četvrtom katu, nudi vrhunski dizajn i funkcionalnost
u elegantnom, suvremenom okruženju, savršenom za one koji traže prostran i udoban
dom. Centralni dio stana je veliki dnevni boravak povezan s kuhinjom i blagovaonicom,
stvarajući otvoreni, prozračni prostor idealan za druženja i svakodnevni život. S puno
prirodnog svjetla, ovaj dio stana pruža toplu i ugodnu atmosferu. Stan ima tri spavaće
sobe, svaka s dovoljno prostora za sve aktivnosti. Dvije moderne kupaonice osiguravaju
privatnost i praktičnost za sve članove zajednice. Posebna prednost stana je dodatna
izba, koja omogućava jednostavno skladištenje svih kućanskih potrepština održavajući
glavni prostor urednim i organiziranim. Terasa proteže se duž cijelog stana, pružajući
izlaz iz svih glavnih prostorija. Ova terasa savršeno upotpunjuje životni prostor, nudeći
miran kutak i uživanje u pogledu na okolinu. Zahvaljujući nenatkrivenoj strukturi i dijelu
natkrivene terase, ona pruža privatnost i mogućnost boravka na otvorenom tijekom cijele
godine, što ovom stanu daje poseban šarm i atraktivnost. Stan nudi dodatnu sigurnost
putem video nadzora, a stanari imaju mogućnost korištenja spremišta u podzemnoj
garaži, što osigurava praktičnost i mir u svakodnevnom životu.
Projekt Jastrebarsko nudi 14 luksuznih stanova u zgradi s pet etaža, uz parkirna mjesta. Investiraj u svoj budući dom i uključite se u našu zajednicu koja nudi sve što vam je potrebno za kvalitetan život.